Deprecated: Creation of dynamic property MyListing\Src\Conditions::$conditional_logic is deprecated in /nas/content/live/uniqueworksdev/wp-content/themes/my-listing/includes/src/conditions.php on line 11
A Full-Floor Opportunity at 535 Fifth Avenue – Unique Workspaces
Details
  • Area
    7300 sq ft
  • Rooms
    6
  • Headcount
    1 to 20 Employees or 1,000 to 3,000 sf, 20 to 40 employees or 3,000 to 6,000 sf
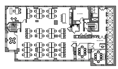
Description

535 Fifth Avenue offers a full 14th floor of 7,300 RSF prebuilt office space with three sides of natural light, modern finishes, multiple conference rooms, a pantry, IT room, and dedicated reception โ€” designed for both efficiency and comfort.

The building features a 24/7 attended lobby with secure keypad access, a building conference amenity, and comes with immediate possession, flexible 5โ€“10 year lease terms, and a furniture allowance to simplify your move-in.

Located in Midtown, just steps from Grand Central, Bryant Park, and major subway/bus lines, the property places your team at the center of convenience and prestige, with surrounding world-class dining, hotels, fitness centers, and clubs.

Location
Transportation
Check Availability

    Call for Details
    Steve Conrad
    Steve Conrad (917) 998-6973

    We are focused on Manhattan Office Spaces that are either beautiful, move-in-ready, luxury, or just unique - Click below to start a new search!